- Woonoppervlakte
- Circa 141 m²
- Perceeloppervlakte
- Circa 188 m²
- Bouwjaar
- Gebouwd in 1979
- Aantal kamers
- 5 kamers (4 slaapkamers)
RUIMTE, LICHT EN PRIVACY OP EEN TOPLOCATIE IN DE MOLENWIJK! – dit is er één die je gezien moet hebben.
Aan de Paltrokmolen 14 in Heerhugowaard staat deze aan de achterzijde bijna 3 meter uitgebouwde HOEKWONING met maar liefst 141 m² woonoppervlakte.
Dankzij de lichte aluminium SERRE, massief eiken vloer, vloerverwarming begane grond, moderne keuken, moderne badkamer (2021), vier slaapkamers en TWEE DAKKAPELLEN woon je hier ruim en comfortabel. Met KUNSTSTOF KOZIJNEN, parkeren op eigen terrein en geen directe achterburen geniet je bovendien van extra privacy.
LOCATIE:
De woning ligt in de rustige en groene Molenwijk. Midden in de wijk vind je een prachtig groen en waterrijk park waar je heerlijk kunt wandelen, spelen en recreëren. Op korte afstand ligt winkelcentrum Middenwaard met circa 150 winkels, een bioscoop, theater en diverse horecagelegenheden. Basisscholen, middelbare scholen, kinderopvang, sportvoorzieningen en openbaar vervoer bevinden zich op loop- en fietsafstand. Ook de uitvalswegen richting Alkmaar, Amsterdam en Hoorn zijn goed bereikbaar. Hier woon je centraal én rustig.
Bijzonderheden:
- Hoekwoning met 141 m² woonoppervlakte
- Vloerverwarming begane grond
- Bijna 3 meter uitgebouwd aan de achterzijde
- Aluminium serre met schuifpui en verlichting
- Moderne keuken (2016)
- Moderne badkamer (2021)
- 4 slaapkamers (mogelijkheid tot 5)
- Twee kunststof dakkapellen (2003)
- Kunststof kozijnen
- Bodemisolatie 2023
- Parkeren op eigen terrein
- Geen directe achterburen
Check de EXCLUSIEVE EIGEN WEBSITE VAN DE WONING voor meer informatie over de woning en de omgeving via de site van EV Wonen Makelaardij.
BEZICHTIGING: plan eenvoudig een afspraak via Funda of de website van EV Wonen Makelaardij. We laten deze leuke woning graag aan je zien!
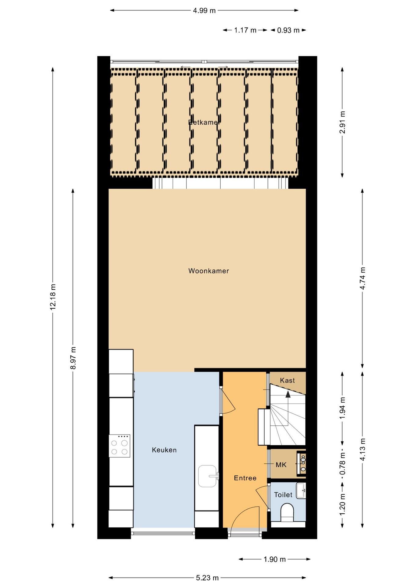
INDELING:
BEGANE GROND:
Via de entree kom je in de hal met toilet, meterkast, garderobe en toegang tot de woonkamer. In de trapkast is een centraal stofzuigersysteem geplaatst; je koppelt eenvoudig de slang aan in de plint en je kunt direct aan de slag.
De tuingerichte woonkamer is heerlijk licht en voorzien van een massief eiken vloer, glad afgewerkte wanden en een strak plafond. Aan de achterzijde bevindt zich de royale aluminium serre met verlichting en een schuifpui naar de tuin, wat zorgt voor extra leefruimte en veel daglicht.
Aan de voorzijde ligt de moderne halfopen keuken (2016), uitgerust met een 4-pits inductiekookplaat, combimagnetron, dubbele RVS spoelbak, koelkast, vaatwasser, headfree afzuigkap, spoelkraan en een ruim werkblad met veel bergruimte.
EERSTE VERDIEPING:
Via de vaste trap bereik je de eerste verdieping. Hier vind je drie ruime slaapkamers en een moderne badkamer (2021).
De badkamer is compleet uitgevoerd met een inloopdouche, wastafelmeubel, tweede (hang)toilet en designradiator. Met het raam en de mechanische ventilatie kan je hier prima ventileren.
TWEEDE VERDIEPING:
De tweede etage is bereikbaar via een vaste trap en is opvallend licht en ruim dankzij de twee brede kunststof dakkapellen (2003). Op de betonnen verdiepingsvloer ligt een teak houten vloer. Ook vind je hier de aansluitingen voor wasmachine en droger, de CV-installatie (Remeha, 2026) en ingebouwde spotjes in het plafond.
Met gemak realiseer je hier één of zelfs twee extra slaapkamers.
TUIN:
De achtertuin bereik je via de schuifpui en ligt heerlijk zonnig. Doordat er geen directe achterburen zijn, geniet je hier van veel privacy. Achterin staat een berging met veranda, ideaal voor tuinkussens en gereedschap. Via een poort aan de zijkant is de tuin ook achterom bereikbaar.
BERGING en PARKEREN:
Voor de woning bevindt zich een stenen berging met elektra, ideaal voor fietsen. Daarnaast kan de auto prima voor de deur op eigen terrein staan.
Deze uitgebouwde hoekwoning combineert ruimte, moderne afwerking en een centrale ligging met veel privacy. Een ideale woning voor starters, stellen of gezinnen die comfortabel willen wonen in een groene en complete woonomgeving.
Aanvaarding: in overleg. Lees de volledige omschrijving
Overdracht
- Vraagprijs
- € 432.500 k.k.
- Status
- Beschikbaar
- Aanvaarding
- In overleg
Bouw
- Object type
- Eengezinswoning, hoekwoning
- Soort bouw
- Bestaande bouw
- Bouwjaar
- 1979
- Soort dak
- Zadeldak bedekt met pannen
Oppervlakte en inhoud
- Woonoppervlakte
- 141 m²
- Perceeloppervlakte
- 188 m²
- Inhoud
- 502 m³
- Externe bergruimte
- 11 m²
Indeling
- Aantal kamers
- 5 kamers (4 slaapkamers)
- Aantal badkamers
- 1 badkamer en 1 apart toilet
- Badkamervoorzieningen
- Inloopdouche, toilet, en wastafelmeubel
- Aantal woonlagen
- 3 woonlagen
- Voorzieningen
- Glasvezelkabel, mechanische ventilatie, schuifpui, en TV kabel
Energie
- Energielabel
- B
- Energielabel registratie
- 19-02-2026
- Isolatie
- Dakisolatie, dubbel glas en muurisolatie
- Verwarming
- Cv-ketel
- Warm water
- Cv-ketel
- Cv ketel
- Remeha ( combiketel uit 2026, eigendom)
Buitenruimte
- Ligging
- Aan rustige weg en in woonwijk
- Tuin
- Achtertuin en voortuin
- Afmetingen achtertuin
- 47 m² (8,50 meter diep en 5,51 meter breed)
- ligging tuin
- Gelegen op het noordoosten bereikbaar via achterom
Bergruimte
- Schuur / berging
- Vrijstaande houten berging
- Voorzieningen
- Elektra
Parkeergelegenheid
- Soort parkeergelegenheid
- Op eigen terrein
Energieverbruik in Heerhugowaard
Energielabel deze woning
Energielabel B
Publicatie energielabel: 19-02-2026
Stroomverbruik per jaar
(Gemiddelde hoekwoning in Heerhugowaard)
Gasverbruik per jaar
(Gemiddelde hoekwoning in Heerhugowaard)
* Cijfers zijn afkomstig van het CBS en bedoeld als indicatie en kunnen verschillen voor deze woning
Indicatie hypotheeklasten
Eigen inleg:
Spaargeld / overwaarde
Rente:
Laagste 10-jaars rente
Laagste 10-jaars rente
2,78% - Centraal Beheer Groen... - NHG
3,04% - Centraal Beheer Groen... - 80%
Laagste 20-jaars rente
3,29% - Centraal Beheer Groen... - NHG
3,52% - Centraal Beheer Groen... - 80%
Laagste 30-jaars rente
3,41% - Centraal Beheer Groen... - NHG
3,7% - Argenta Groen Hypotheek... - 80%
Hypotheek:
Bruto maandlasten: € 0 p/m
Netto maandlasten: € 0 p/m
Hoe berekenen we dit?
Het rentepercentage is gebaseerd op de laagste 10 jaars vaste rente voor één hypotheekdeel. De vermelde rente (3.04% zonder NHG) is gecontroleerd op 05-03-2026. Deze berekening is gebaseerd op een annuïteitenhypotheek die volledig wordt afgelost, waarbij de maandlasten gedurende de gehele looptijd gelijk blijven. De werkelijke rente en netto maandlasten kunnen variëren, afhankelijk van uw persoonlijke situatie en de hypotheekverstrekker. Raadpleeg een financieel adviseur voor een nauwkeurige berekening en advies. Aan deze berekening kunnen geen rechten worden ontleend; het dient enkel als indicatie.
Documentatie
Kadastrale kaart
Leefomgeving
Brochure woning
Plattegronden PDF
WOZ waarderapport
BAG uittreksel
Lijst van zaken
Vragenlijst
Bezoek onze website
Bezichtiging
Bod uitbrengen
Waardebepaling
Zoekopdracht
Alles downloaden
Zonnegrenzen bekijken
Inwoners in Heerhugowaard
Cijfers voor postcodegebied 1703
- Totaal aantal inwoners
- 59045 inwoners
- Mannen
- 51%
- Vrouwen
- 49%
Inwoners in Heerhugowaard
Cijfers voor postcodegebied 1703
- tot 15 jaar
- 17%
- 15 tot 25 jaar
- 13%
- 25 tot 35 jaar
- 25%
- 45 tot 65 jaar
- 27%
- 65 en ouder
- 18%
Huishoudens in Heerhugowaard
Cijfers voor postcodegebied 1703
- Eenpersoons zonder kinderen
- 38%
- Meerpersoons zonder kinderen
- 30%
- Huishoudens zonder kinderen
- 68%
Huishoudens in Heerhugowaard
Cijfers voor postcodegebied 1703
- Huishoudens met één kind
- 8%
- Huishoudens met meerdere kinderen
- 24%
- Huishoudens met kinderen
- 32%
Woningen in Heerhugowaard
Cijfers voor postcodegebied 1703
- Woningen voor 1945
- 2%
- Woningen tussen 1945 en 1965
- 1%
- Woningen tussen 1965 en 1975
- 1%
- Woningen tussen 1975 en 1985
- 67%
- Woningen tussen 1985 en 1995
- 13%
Woningen in Heerhugowaard
Cijfers voor postcodegebied 1703
- Woningen tussen 1995 en 2005
- 11%
- Woningen tussen 2005 en 2015
- 3%
- Woningen na 2015
- 2%
- Huurwoningen
- 40%
- Koopwoningen
- 60%
Overige in Heerhugowaard
Cijfers voor postcodegebied 1703
- Gemiddelde WOZ waarde
- € 217.000,-
- Personen onder de 65 met uitkering
- 10%
Overige in Heerhugowaard
Cijfers voor postcodegebied 1703
- Adressen per km²
- 2176
- Stedelijkheid (schaal 1 op 5)
- 80%
Korte feiten over Heerhugowaard
Heerhugowaard is een plaats in de gemeente Dijk en Waard, in de regio West-Friesland in de Nederlandse provincie Noord-Holland. Heerhugowaard hoort historisch gezien niet bij Kennemerland maar valt wel onder de gemeentelijke samenwerkingsregio Kennemerland via Noord-Kennemerland.
Wie is EV Wonen Makelaardij?
Het verlaten van je oude woning of het ontdekken van je nieuwe droomhuis is een ongelooflijk opwindend proces voor de meeste van onze klanten. Er zijn zoveel besluiten te nemen en talloze factoren die invloed hebben op het behalen van het best mogelijke resultaat voor jou. Bovendien is de vraag naar woningen sterk gestegen en hebben de prijzen recordhoogtes bereikt.
In deze dynamische en vaak onvoorspelbare markt zijn wij de toonaangevende verkoopmakelaar in de regio, goed geïnformeerd over de lokale huizenmarkt en de verkoopmogelijkheden van jouw woning.
We hebben voor veel klanten uitstekende verkoop- of aankoopresultaten behaald. Wij volgen geen vaste methoden, omdat we geloven dat elke woning en verkoper uniek is. Bij ons kun je rekenen op een persoonlijke benadering. Ons succesgeheim is dat we alledaagse dingen buitengewoon goed uitvoeren.
Een huis met succes verkopen is geen eenvoudige taak. EV Wonen Makelaardij biedt:
– een solide verkoopstrategie;
– een eersteklas presentatie met altijd een toppositie op Funda;
– een gedreven en gecertificeerde Register Makelaar/Taxateur;
– proactief gebruik van sociale media;
– en een flinke portie lokale marktkennis.
Onze aanpak heeft de afgelopen jaren geleid tot een zeer hoge Funda klantbeoordeling van 9,5! Dit betekent dat klanten met een goed verkoopproces uitstekende verkoopresultaten hebben behaald.
We besteden veel aandacht aan jouw persoonlijke situatie en de specifieke kenmerken van jouw woning. Dit, in combinatie met een goede communicatie, garandeert een succesvol verkoop- of aankooptraject. Benieuwd wat we voor jou kunnen doen? We komen graag vrijblijvend langs voor advies op maat.
Naast Heerhugowaard zijn we ook actief als makelaar in Alkmaar, Oterleek, Langedijk, Hensbroek, Obdam en omgeving.
Wij kunnen je op een unieke en persoonlijke manier volledig ontzorgen als verkoopmakelaar of aankoopmakelaar bij de verkoop of aankoop van jouw woning.
Nieuwste reviews
-
David Sanderse
Zeer kundige en goed voorbereide makelaar. We hebben duidelijke afspraken gemaakt rondom de verkoop en die zijn nagekomen. De communicatie i...
-
Annemieke Weijers
Goede ervaring gehad met de makelaar. Nette eerlijke open onderhandelingen. Ook fijn dat alles op tijd en correct werd afgehandeld.
-
Gabriëlstraat 17
EV Wonen heeft direct in 1e gesprek direct een grondige marktkennis laten zien en een gedegen plan van aanpak en offerte overlegd. EV Wonen...